おすすめ物件情報

拘りの注文住宅・建物37坪超

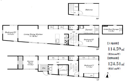
洗足 中古戸建

〇おすすめポイント-----------------------------------
◆ 3駅2路線利用可
◆拘りの注文住宅
◆土地34坪超
◆ゆとりの約18.6帖
◆浴室は1620タイプ
◆窓があり、換気しやすく明るい浴室・洗面所
◆納戸・床下収納などもあり、収納豊富
◆ルーフバルコニー付
◆現況空家につき即内覧可能

物件概要

価格
15,800万円
間取り
3SLDK
所在地
目黒区南1丁目
交通
目黒線「洗足」駅徒歩9分
大井町線・目黒線「大岡山」駅徒歩13分
目黒線「西小山」駅徒歩13分
建物面積
124.51㎡(約37.66坪)
土地面積
114.59㎡(約34.66坪)
築年月
2012年12月
建物構造
木造2階建
現況
空家
駐車場
あり
土地権利
所有権
地目
宅地
建ぺい率
60%
容積率
150%
用途地域
第1種低層住居専用地域
取引様態
媒介