おすすめ物件情報

13m公道面・2駅利用可

矢口渡 中古戸建

〇おすすめポイント-----------------------------------
◆カースペース付きの4LDKタイプ
◆玄関指紋認証施錠
◆西側約13m公道面の解放感
◆3面採光の明るいLDK
◆2駅利用可
◆食器洗機・浄水器付きのシステムキッチン
◆1坪サイズのバスルーム・ミストサウナ付き
◆多摩川河川敷まで徒歩6分

物件概要

価格
5,480万円
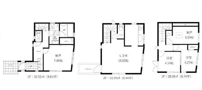
間取り
2LDK+納戸×2
所在地
大田区矢口3丁目
交通
多摩川線「矢口渡」駅歩12分
多摩川線「武蔵新田」駅徒歩13分
建物面積
92.77m2(28.06坪)
土地面積
68.84m2(20.82坪)
築年月
2013年4月
建物構造
木造3階建
現況
居住中
駐車場
あり
土地権利
所有権
地目
宅地
建ぺい率
60%
容積率
200%
用途地域
準工業地域
取引様態
媒介