おすすめ物件情報

駅徒歩3分・21㎡超専用庭

クレッセント上野毛Ⅱ

〇おすすめポイント-----------------------------------
◆駅徒歩3分の好立地
◆21㎡超の専用庭付き住戸
◆人気の 対面式キッチン・食洗機付き
◆柱が気にならないアウトフレーム工法
◆オートロック、宅配ボックス付き
◆全室窓あり
◆アフターサービス保証付
◆リフォーム2025年10月完成予定

物件概要

価格
7,499万円
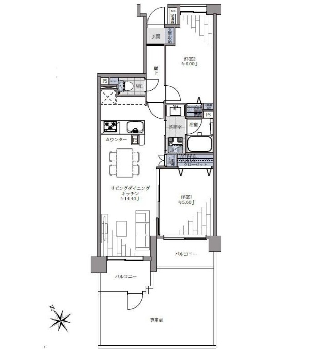
間取り
2LDK
所在地
世田谷区上野毛1丁目
交通
大井町線「上野毛」駅徒歩3分
専有面積
57.38㎡(約17.35坪)
管理費等/月
10,900円
修繕積立金/月
12,800円
築年月
1997年2月
階数/階建
1階/6階
向き
南西
バルコニー面積
7.95㎡
建物構造
RC造
現況
空室
総戸数
40戸
管理会社
㈱東急コミュニティ
管理方式
全部委託(日勤)
分譲会社
(株)モリモト
施工会社
㈱間組
取引様態
媒介
引渡時期
相談