おすすめ物件情報

南東向き5階部分・駅徒歩6分

フェアロージュ南雪谷

〇おすすめポイント-----------------------------------
◆5階・南東向きのため陽当たり・眺望良好
◆ペット飼育可能(2頭迄可)
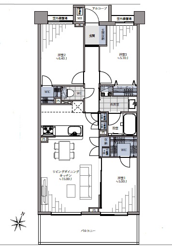
◆柱が少なく 家具レイアウトしやすい間取り
◆オートロック、宅配ボックス完備
◆リビング収納やWICは2か所でゆとりある収納スペース
◆食洗機・浄水器付きの対面式キッチン
◆玄関前にアルコーブ併設で、ベビーカー等置けます
◆2026年1月新規内装リフォーム完了予定

物件概要

価格
9,580万円
間取り
3LDK
所在地
大田区南雪谷1丁目
交通
池上線「石川台」駅徒歩6分
池上線「雪が谷大塚」駅歩7分
専有面積
70.78㎡
管理費等/月
9,900円
修繕積立金/月
11,680円
築年月
2000年1月
階数/階建
5階/7階
向き
南東
バルコニー面積
11.49㎡
建物構造
RC造
現況
空室
総戸数
65戸
管理会社
株式会社日鉄コミュニティ
管理方式
全部委託(日勤)
分譲会社
新日鉄都市開発
施工会社
松井建設株式会社
取引様態
媒介
引渡時期
相談